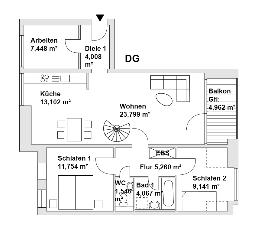
Fußbodenheizung, Balkon am Wohnzimmer, großzügige, offene Küche mit Fenster, Bad Ebene 1 mit Wanne, separates WC, 2. Bad in der Galerie mit Fenster, Dusche und WC, Galerie begehbar über Treppe im Wohnzimmer, Wohnzimmer mit Parkett, 3 Schlafzimmer mit Parkett, Arbeitszimmer mit Parkett, großzügiger Wohnbereich in der Galerie mit Parkett, Einbauschrank im Flur, Keller
Wohnungssuche
924-37-142 - Dachgeschosswohnung über 2 Etagen mit Balkon und Parkett – 2 Bäder zu vermieten
Kaltmiete:
Beschreibung
Objektdaten
Basisinformationen
Ausstattung
Mietpreis
Wohnungsdetails:
Objektinfos
Haus in geschlossener Karreebebauung. Im geschützten, grünen Innenhof befindet sich auf einer weitläufigen Wiese ein angelegter Bachlauf mit Teich. Nur wenige Schritte entfernt liegt ein schöner Kinderspielplatz mit Spielburg, Sandfläche und Sitzgelegenheiten.
Fußbodenheizung, Balkon am Wohnzimmer, großzügige, offene Küche mit Fenster, Bad Ebene 1 mit Wanne, separates WC, 2. Bad in der Galerie mit Fenster, Dusche und WC, Galerie begehbar über Treppe im Wohnzimmer, Wohnzimmer mit Parkett, 3 Schlafzimmer mit Parkett, Arbeitszimmer mit Parkett, großzügiger Wohnbereich in der Galerie mit Parkett, Einbauschrank im Flur, Keller
Zentrumsnahe, grüne Wohnlage mit sehr guter Verkehrsanbindung an die Autobahn. Kinderfreundliche Anlage mit grünen Innenhöfen und wenig Anliegerverkehr. Alle Einkaufsmöglichkeiten, Schule und Sozialeinrichtungen liegen in direkter Nachbarschaft.
Vereinbaren Sie Ihre individuelle Guckzeit zur Besichtigung freier Wohnungen: 0371/46400420
Zusatzinformationen:
Energieausweis
(0 - 25) A+
(26 - 50) A
(51 - 75) B
«(76 - 100) C
(101 - 125) D
(126 - 150) E
(151 - 200) F
(201 - 250) G
(>250) H
