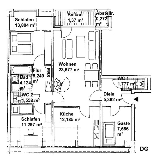
Fußbodenheizung, Balkon, große Wohnküche mit Parkett und Fenster, Bad 1 mit Wanne und Waschmaschinenanschluss (Beleuchtung durch Downlights), separates WC, Gäste-WC, Bad 2 in der Galerie mit Fenster, Parkett und Dusche, Wohnzimmer, 3 Schlaf- bzw. Kinderzimmer, 1 Gästezimmer, 1 Arbeitszimmer in der Galerie, Einbauschrank im Flur, Abstellraum auf dem Balkon, Keller, Wohnzimmerbelag: Parkett
Wohnungssuche
924-25-093 - Komfortable 5-Zi-Wohnung über 2 Etagen mit Balkon, Wohnküche und 2 Bädern zu vermieten
Kaltmiete:
Beschreibung
Objektdaten
Basisinformationen
Ausstattung
Mietpreis
Wohnungsdetails:
Objektinfos
Neubau mit grünem Innenhof. Nur wenige Schritte entfernt, befinden sich der Spielplatz mit großer Spielburg, Sandfläche und Wipptieren.
Fußbodenheizung, Balkon, große Wohnküche mit Parkett und Fenster, Bad 1 mit Wanne und Waschmaschinenanschluss (Beleuchtung durch Downlights), separates WC, Gäste-WC, Bad 2 in der Galerie mit Fenster, Parkett und Dusche, Wohnzimmer mit Parkett, 3 Schlaf- bzw. Kinderzimmer mit Parkett, 1 Gästezimmer mit Parkett, 1 Arbeitszimmer in der Galerie mit Parkett, Einbauschrank im Flur, Abstellraum auf dem Balkon, Keller
Zentrumsnahe, grüne Wohnlage mit sehr guter Verkehrsanbindung an die Autobahn. Kinderfreundliche Anlage mit grünen Innenhöfen und wenig Anliegerverkehr. Alle Einkaufsmöglichkeiten, Schule und Sozialeinrichtungen liegen in direkter Nachbarschaft.
Vereinbaren Sie Ihre individuelle Guckzeit zur Besichtigung freier Wohnungen: 0371/46400420.
Zusatzinformationen:
Energieausweis
(0 - 25) A+
(26 - 50) A
(51 - 75) B
(76 - 100) C
«(101 - 125) D
(126 - 150) E
(151 - 200) F
(201 - 250) G
(>250) H
